architektin di marlies maria haas | staatlich befugte und beeidete ziviltechnikerin | gartengasse 19 | 8010 graz
t 0650-7447071 | f 0316-429024-12 | e office@mmhaas.at
impressum | datenschutz
zurück
| vision | form | analyse | beratung | planung |
<
>
bungalow 117
einfamilienhaus hamdy
knittelfeld
mirnock
passivhaus
seewinkel
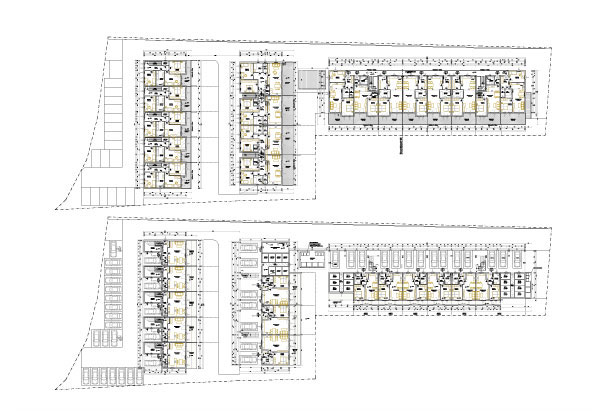
silver living
einfamilienhaus reisinger
projekte 2011/2010